Die Stadtverordnetenversammlung der Stadt Nidderau hat in ihrer Sitzung am
23.03.2023 den Bebauungsplan VL 220-2021 „Die Spitzäcker – 1. Änderung“ inklusive
planungsrechtlichen Festsetzungen und bauordnungsrechtlichen Festsetzungen
gemäß § 10 Abs. 1 BauGB als Satzung beschlossen und der Begründung zugestimmt.
Mit dieser Bekanntmachung treten der Bebauungsplan und die bauordnungsrechtlichen Festsetzungen gemäß § 10 Abs. 3 BauGB in Kraft. Der Bebauungsplan wurde gemäß § 13 BauGB im vereinfachten Verfahren aufgestellt. Demnach konnte von der Umweltprüfung und dem Umweltbericht, von der Angabe welche Arten umweltbezogener Informationen verfügbar sind, von der frühzeitigen Beteiligung gem. §§ 3 Abs. 1 und 4 Abs. 1 BauGB, sowie von der zusammenfassenden Erklärung abgesehen werden.
Der Bebauungsplan inklusive Begründung und Anlagen kann von Jedermann während
der allgemeinen Dienststunden im Rathaus der Stadt Nidderau, Stadtverwaltung
Nidderau, Am Steinweg 1, 61130 Nidderau, Zimmer O.20, eingesehen und über den Inhalt Auskunft verlangt werden. Weiterhin können die Unterlagen auch im Internet auf der Homepage der Stadt Nidderau unter www.nidderau.de eingesehen werden.
Eine Verletzung der in § 214 Abs. 1 Satz 1 Nr. 1 bis 3 des Baugesetzbuches (BauGB)
bezeichneten Verfahrens- und Formvorschriften bei der Aufstellung dieses Bebauungs-
planes, eine unter Berücksichtigung des § 214 Abs. 2 beachtliche Verletzung der Vorschriften über das Verhältnis des Bebauungsplans und des Flächennutzungsplans und nach § 214 Abs. 3 Satz 2 beachtliche Mängel in der Abwägung sind nach § 215 BauGB unbeachtlich, wenn sie nicht schriftlich innerhalb eines Jahres seit Bekanntmachung des Bebauungsplanes gegenüber der Stadt geltend gemacht worden ist. Der Sachverhalt, der die Verletzung oder den Mangel begründen soll, ist darzulegen.
Durch den Bebauungsplan können Entschädigungsansprüche entstehen. Nach § 44
Abs. 3 Baugesetzbuch kann der Entschädigungsberechtigte Entschädigung verlangen,
wenn die in den §§ 39 bis 42 Baugesetzbuch bezeichneten Vermögensnachteile eintreten. Er kann die Fälligkeit des Anspruchs dadurch herbeiführen, dass er die Leistung der Entschädigung schriftlich bei dem Entschädigungspflichtigen beantragt. Nach § 44 Abs. 4 Baugesetzbuch erlischt ein Entschädigungsanspruch, wenn nicht innerhalb von drei Jahren nach Ablauf des Kalenderjahres, in dem die in § 44 Abs. 3 Satz 1 Baugesetzbuch bezeichneten
Vermögensnachteile eingetreten sind, die Fälligkeit des Anspruchs herbeigeführt wird.

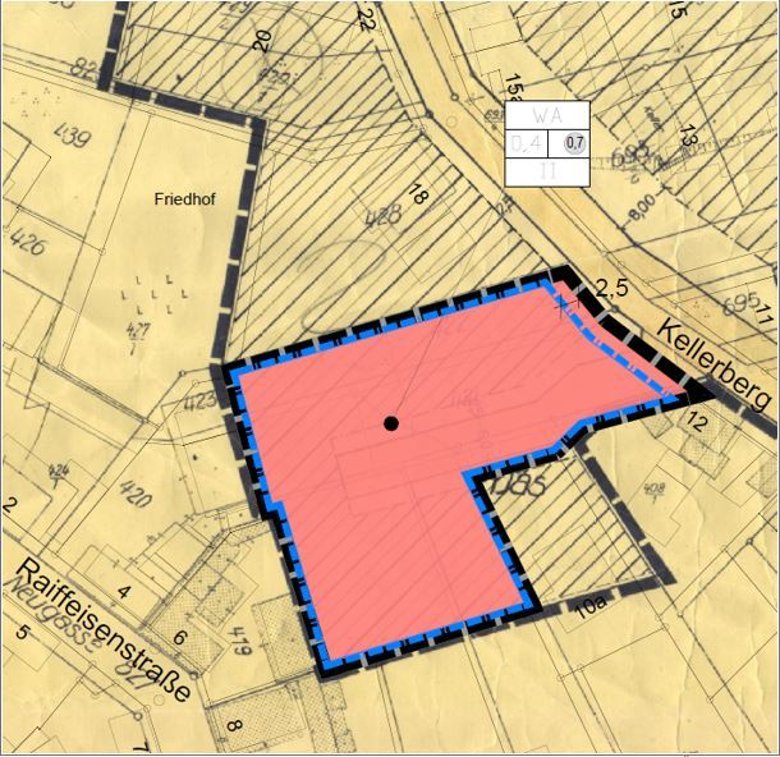
Geltungsbereich:
Geltungsbereich des Bebauungsplans VL 220-2021 „Die Spitzäcker - 1. Änderung“, genordet – ohne Maßstab
Nidderau, 30.05.2023
Der Magistrat der Stadt Nidderau
Andreas Bär
Bürgermeister

